Sviluppo in BIM di un Edificio Scolastico

Scuola Formello Roma BIM

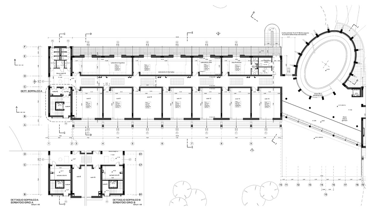
Scuola secondaria Rossellini di Formello (Roma)

  • PROGETTO: Studio Spagnolo Roccheggiani
  • COLLABORATORI: Architetto Mario Sacco (ArchiRADAR)

 

Progetto realizzato con il supporto di un modello virtuale con metodologia BIM.

Il modello è stato utilizzato per la redazione di tutti gli elaborati, per il calcolo delle quantità, per la verifica dei nodi complessi, per la simulazione fotorealistica.
Il modello virtuale è stato adottato sia per la parte edilizia che per una prima bozza di progetto strutturale; l'interoperabilità, garantita dallo scambio di modelli virtuali con chi si occupava delle strutture, ha consentito un aggiornamento continuo dell'architettonico in base ai requisiti dello strutturale.

 


01 Pianta  02 Sezioni  03 Particolari  04 BIMx  05 BIMx  06 Rendering  07 Rendering  08 Foto Realizzazione  09 Foto Realizzazione  

Chi è online

Abbiamo 1173 ospiti e nessun utente online

Utenti iscritti al sito

89928