Progettazione BIM di un appartamento

Appartamento bimx archicad banner

Appartamento a Roma

  • PROGETTO: Architetto Mario Sacco (ArchiRADAR)
  • PARTNER: Studio Structura Srl

 

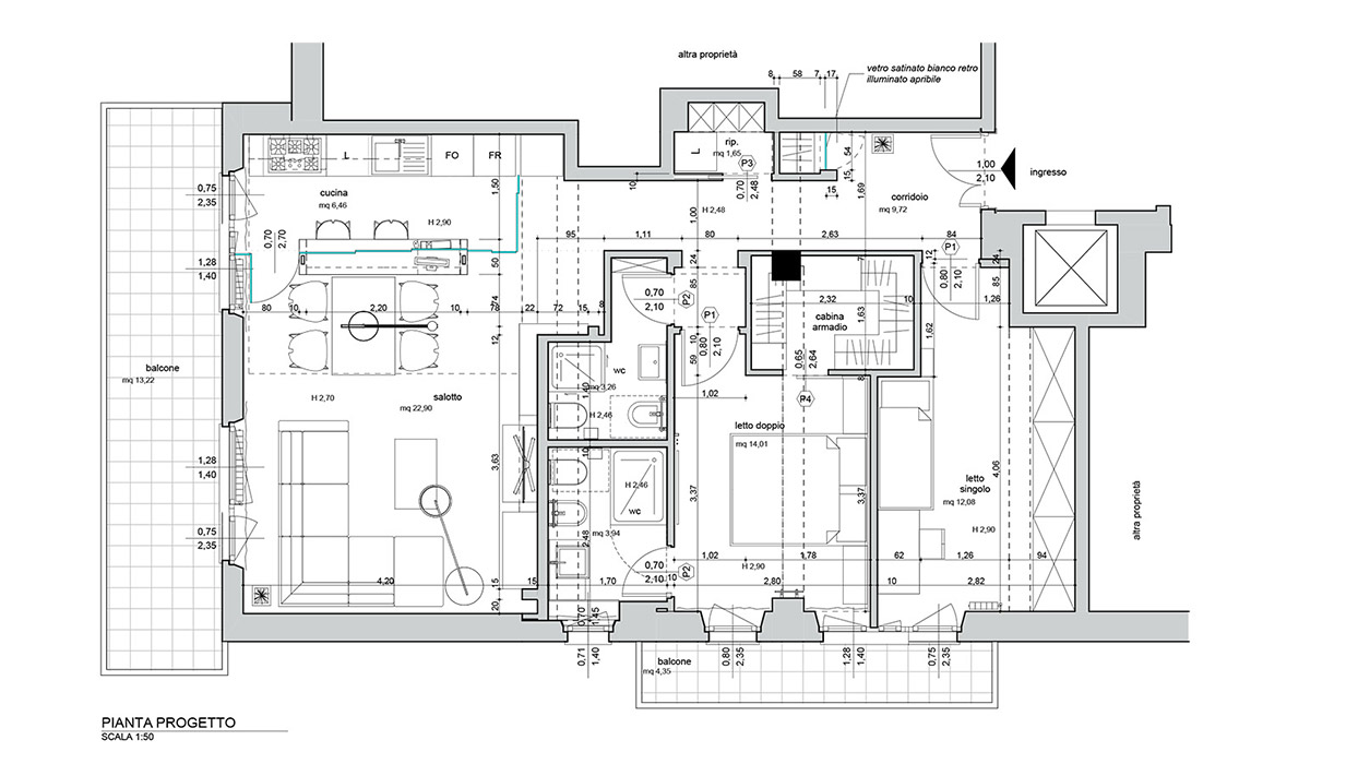
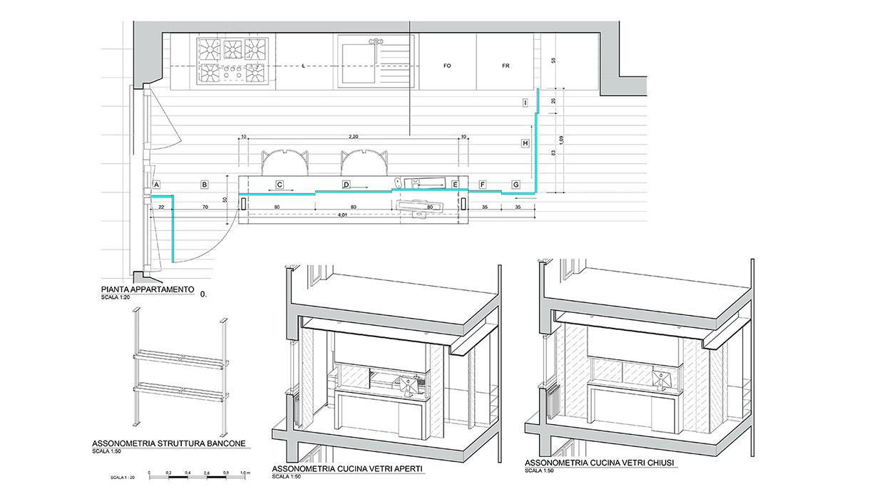
Progetto realizzato con il supporto di un modello virtuale realizzato con metodologia BIM.

Il modello è stato utilizzato per la redazione di tutti gli elaborati, per il calcolo delle quantità, per la verifica dei nodi complessi, per la simulazione fotorealistica e per il supporto in cantiere. Il modello virtuale è stato adottato sia per la parte edilizia che per tutti gli arredi su misura.

 

01 Pianta  02 Dettagli  03 Abaco  04 Elettrico  05 BIMx  06 BIMx  07 BIMx  08 Modello3D  09 Foto 

 

Chi è online

Abbiamo 1104 ospiti e un membro online

Utenti iscritti al sito

89732